Der har ikke været meget aktivitet i landets idrætscentre under corona, og det er også tilfældet hos Vendsyssel Idrætscenter.
Derfor har de udnyttet tiden og lagt store planer.
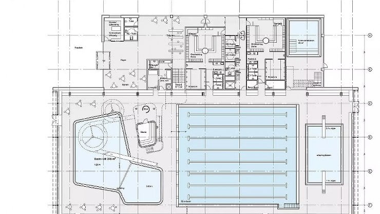
Der har længe været ønske om en svømmehal, og nu kan drømmen måske snart realiseres.
– Vi er i rigtig god dialog med Hjørring Kommune, og vi har snart en ansøgning klar, som vi kan sende afsted til dem. I starten af maj skulle vi meget gerne have sendt den afsted, siger Alex Rasmussen, der er centerdirektør i Idrætscenter Vendsyssel.

Der er planer om en svømmehal med et 25 meter bassin med otte baner, et udspringsbassin med både et- og tremeter vippe, samt klatrevæg, et wellness-område, varmtvandsbassin, børnebassin med vandrutsjebaner og to padeltennisbaner.
Hele projektet kommer ifølge centerdirektøren til at koste omkring 100 millioner kroner. Heraf søger Vendsyssel Idrætscenter om cirka en tredjedel hos Hjørring Kommune.
– Vi har en stærk formodning om, at vi godt kan skaffe resten af penge selv ved hjælp af fonde og selvfinansiering, siger Alex Rasmussen.
Hvis Hjørring Kommune godkender projektet og bevilliger pengene, regner Alex Rasmussen med, at spaden kan komme i jorden til april næste år. Herefter tager det omkring halvandet år før svømmecenteret kan stå klar i udgangen af 2023.
– Vi ser jo en bosætning, der vokser i Vrå, og med et projekt som dette håber vi at kunne fortsætte med at vækste, siger Alex Rasmussen.
Det nye projekt forventes at skabe fire til fem nye fuldtidsstillinger.
Kilde: TV2 Nord.


